
申請業務の負担を軽減できます
申請業務の中でも、多く時間を要する作業の図面作成業務。給水・排水申請図面作成代行を利用することで自社の申請担当者様の負担を減らして、業務をより効率化することが可能です。
戸建住宅専門(新築・中古戸建リフォーム)となります、お忙しい時期の
外注として給水・排水申請図面作成代行を是非ご利用下さい。
※地域、条件によります。詳しくはお問い合わせください。

指定工事店ではございません。

指定工事店ではございません。
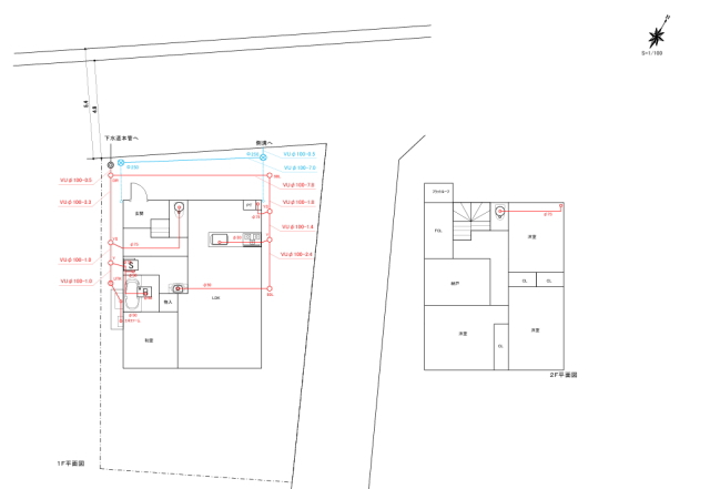
水道を供給するための給水装置
給水装置は一般家庭の台所の飲用水、浴槽設備など生きる上で大切な設備です、単純に水が出ればいいというものではなく配管や他の施設に負担をかけないように設計する必要んいなります。当社では依頼主からの要望を汲み、各事業所との連携を図りながら給水装置の設計、書類作成までスムーズな申請業務を進めていきます。
戸建住宅の給水申請代行なら
30,000円~
※初回はご相談させて頂きます。
※地域、条件によります。詳しくはお問い合わせください。
排水を円滑にする排水整備
生活の衛生基準を守る上で欠かすことのできない排水設備。下水道法などにより一定の法的な基準や規制を設けているため、雨水、汚水、特殊排水など水質などに合わせ設計する必要があり、書類申請から工事まで法に準じて遂行しなくてはなりません。現場の着工前から竣工までをサポートさせて頂きます。
戸建住宅の排水設備申請代行なら
30,000円~
※初回はご相談させて頂きます。
※地域、条件によります。詳しくはお問い合わせください。

指定工事店ではございません。
ご不明な点がありましたら、お気軽にお問い合わせください。
| ① | 図面作成のみ(内部) | |
| 給水図面作成 ※水理計算等ある場合別途料金発生 |
8,000円~ | |
| 排水図面作成 | 8,000円~ | |
| ② | 図面作成のみ(道路あり) | |
| 給水図面作成 ※水理計算等ある場合別途料金発生 |
15,000円~ | |
| 排水図面作成 | 15,000円~ | |
| ③ | ①+申請業務 | |
| 給水 ※水理計算等ある場合別途料金発生 |
30,000円~ | |
| 排水 | 25,000円~ | |
| ④ | ②+申請業務 | |
| 給水 ※水理計算等ある場合別途料金発生 |
50,000円~ | |
| 排水 | 45,000円~ | |
③④の詳細
<給水>
※竣工検査立会はしておりません。
※道路占用許可取得に係る手数料は別途請求
(手数料が必要な市のみ)
※道路使用許可の手数料は別途請求(2,500円)
※申請時に協議等がある場合、別途請求
| ① | 図面作成のみ(内部) | |
| 給水図面作成 ※水理計算等ある場合別途料金発生 |
10,000円~ | |
| 排水図面作成 | 10,000円~ | |
| ② | 図面作成のみ(道路あり) | |
| 給水図面作成 ※水理計算等ある場合別途料金発生 |
17,000円~ | |
| 排水図面作成 | 17,000円~ | |
| ③ | ①+申請業務 | |
| 給水 ※水理計算等ある場合別途料金発生 |
35,000円~ | |
| 排水 | 30,000円~ | |
| ④ | ②+申請業務 | |
| 給水 ※水理計算等ある場合別途料金発生 |
55,000円~ | |
| 排水 | 50,000円~ | |
③④の詳細
<給水>
※竣工検査立会はしておりません。
※道路占用許可取得に係る手数料は別途請求
(手数料が必要な市のみ)
※道路使用許可の手数料は別途請求(2,500円)
※申請時に協議等がある場合、別途請求
この項目にない事でもお気軽にお問い合わせください。

給水・排水申請図面作成代行
よく寄せられます質問と回答の一部を掲載しております。
ご利用をご検討されてる方のご参考になれば幸いです。
ご不明な点がありましたら、お気軽にお問い合せください。
はい、可能です。
はい、可能です。
PDFデータでお渡し致します。
3回までは無料でさせて頂きます。それ以上は有料オプションとなります。
はい、可能です。
はい、無料です。